Details
Gallery
Video
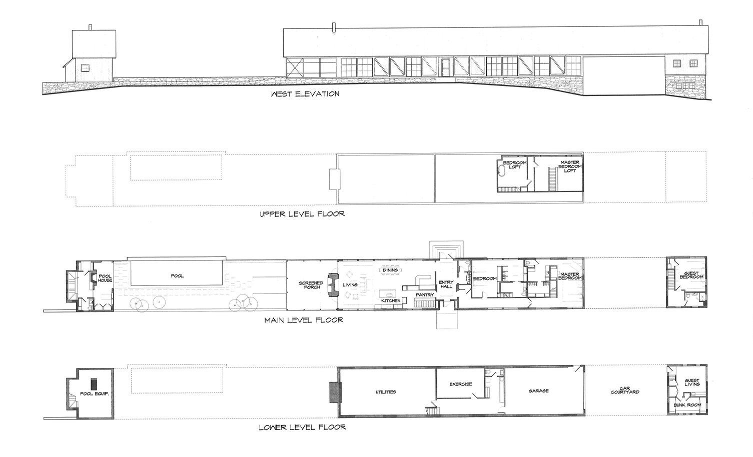
Floor Plans
Contact
241 Cunningham Hill Road, Canaan, NY
Floor Plans
Floor Plan 1
Floor Plan 2
Contact Us
Steven Weisz
Real Estate Broker
C: 917.670.6339
Diane Thorson
Global Real Estate Advisor
C: 857.424.8357
I'm interested in Video Chat
No
Yes
First Name
Last Name
Email Address
Phone Number
Message
I’m interested in 241 Cunningham Hill Road in Canaan.
Request Info